Design Master Class – Fall 2023
The fall 2023 design master class entitled Unfinished Building was led by Dyvik Kahlen. The two-week-long workshop explored the idea that a building is never truly finished, always remaining subject to change. While buildings are—or should be—made to last, people and lifestyles develop and evolve: buildings are reused in different ways; worn-down materials are replaced with others; doors, windows, and walls are added or altered. This cycle tends to repeat itself over time. Participants in the master class explored building proposals of an unfinished and adaptable nature by making large, crude timber models at a scale of 1:25. The fortnight included a public lecture and site visits, and concluded with a public event and exhibition held on Friday, November 17.
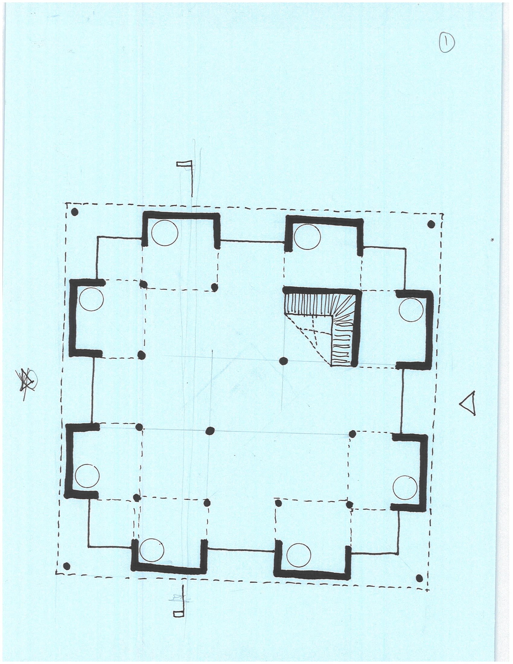
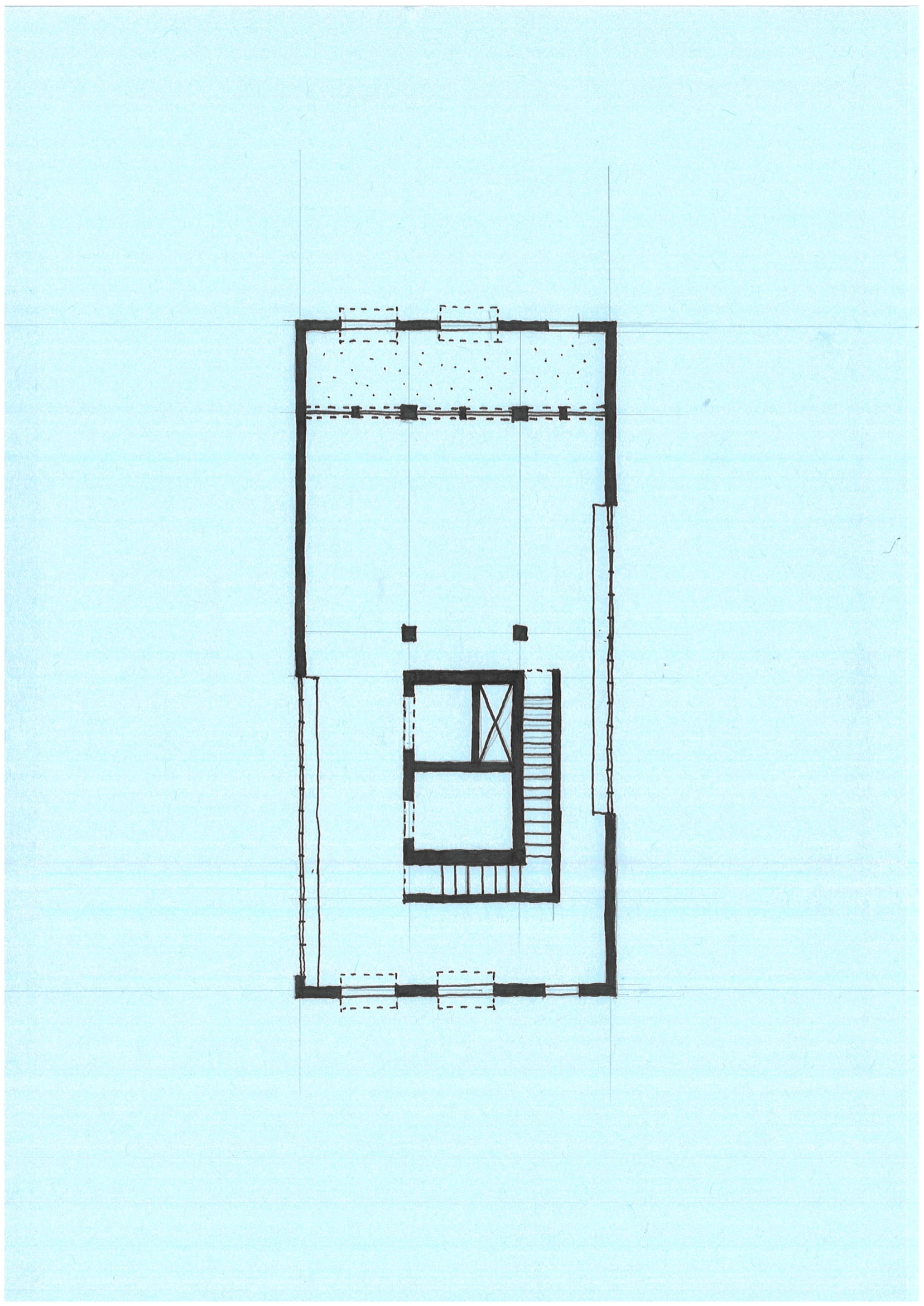
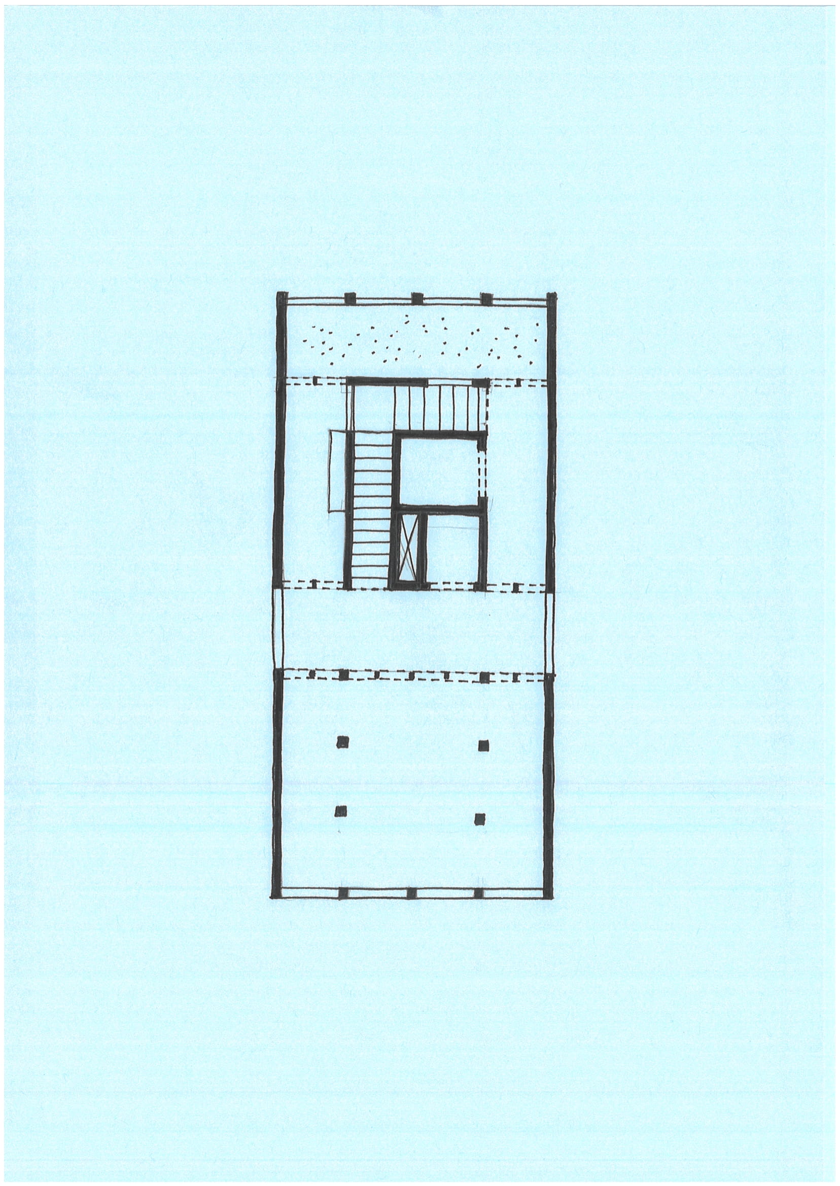
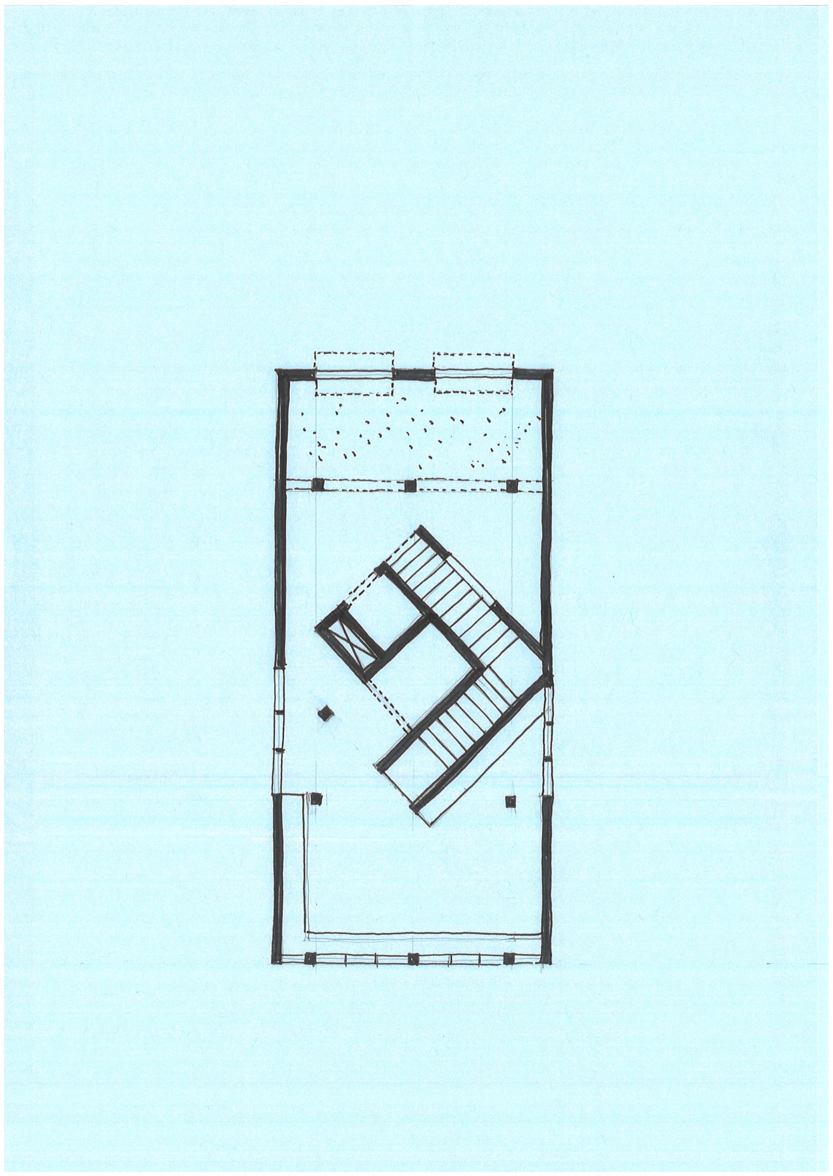
In the first act, teams selected two reference images to identify architectural principles—such as structure, spatial relationships, light, or materiality—and translated them into a floor plan. Each team produced ten design iterations in three days, each represented by a hand-drawn plan, section, and elevation on A4 paper in portrait format using a black pen. The focus was on intuition, clear spatial logic, and structural clarity.
In the second act, each group translated their building proposal into a 1:25 timber model, developing construction details and exploring spatial and structural solutions through hands-on making. The models were assembled from simple elements—panels, columns, beams—and had to stand on their own without a plinth. In the final act, participants worked along Rubén Dario Kleimeer to photograph their models: one interior and one exterior shot, imagining them as moments from the building’s life. Mood, time of day, activity, and context were carefully considered. Scaled furniture was added where needed to convey scale.
Unfinished Building #1
Carlos von Bertrab
Nathalia Kuijpers
Timber model, 70 × 68 × 80 cm, scale 1:25
Carlos von Bertrab
Nathalia Kuijpers
Timber model, 70 × 68 × 80 cm, scale 1:25
Unfinished Building #2
Mohil Bhavsar
Efi Chatzikonstantinou
Timber model, 96 × 56 × 86 cm, scale 1:25
Mohil Bhavsar
Efi Chatzikonstantinou
Timber model, 96 × 56 × 86 cm, scale 1:25
Unfinished Building #3
Misha Frantsuzov
Lefkothea Spartioti
Timber model, 61 × 65 × 124 cm, scale 1:25
Misha Frantsuzov
Lefkothea Spartioti
Timber model, 61 × 65 × 124 cm, scale 1:25
Unfinished Building #4
Evan Craig
Andrea Ramos
Timber model, 52 × 74 × 80 cm, scale 1:25
Evan Craig
Andrea Ramos
Timber model, 52 × 74 × 80 cm, scale 1:25
Unfinished Building #5
Ximeng Luo
Yi-an Tseng
Timber model, 50 × 50 × 73 cm, scale 1:25
Ximeng Luo
Yi-an Tseng
Timber model, 50 × 50 × 73 cm, scale 1:25
Unfinished Building #6
Sara Gohberg
Ivanna Gressani
Timber model, 68 × 60 × 80 cm, scale 1:25
Sara Gohberg
Ivanna Gressani
Timber model, 68 × 60 × 80 cm, scale 1:25
Participants
Carlos von Bertrab (MX)
Mohil Bhavsar (IN)
Evan Craig (US)
Misha Frantsuzov (RU)
Sara Gohberg (RU)
Ivanna Gressani (AR)
Efi Chatzikonstantinou (GR)
Nathalia Kuipers (BR)
Ximeng Luo (CN)
Andrea Ramos (MX)
Lefkothea Spartioti (GR)
Yi-an Tseng (TW)
Carlos von Bertrab (MX)
Mohil Bhavsar (IN)
Evan Craig (US)
Misha Frantsuzov (RU)
Sara Gohberg (RU)
Ivanna Gressani (AR)
Efi Chatzikonstantinou (GR)
Nathalia Kuipers (BR)
Ximeng Luo (CN)
Andrea Ramos (MX)
Lefkothea Spartioti (GR)
Yi-an Tseng (TW)
Led by
Dyvik Kahlen
With contributions from
Ido Avissar
Fabrizio Ballabio
Juan Benavides
Dyvik Kahlen
With contributions from
Ido Avissar
Fabrizio Ballabio
Juan Benavides
Photography by
Rubén Dario Kleimeer
Director of Studies
Salomon Frausto
Salomon Frausto